Client
Privado
Project Date
Septiembre 2023
Category
Diseño · Diseño de Cocina · Diseño de Piscina · Iluminación · Interiores · Residencial
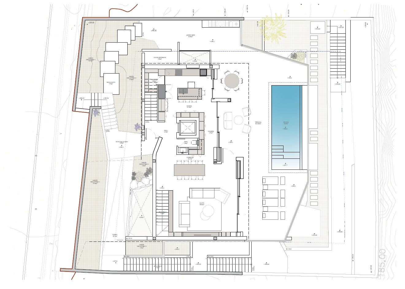
Este proyecto residencial, situado estratégicamente en una ladera con pronunciada pendiente, se adapta cuidadosamente a la topografía mediante un escalonamiento de volúmenes que se asientan con precisión sobre el terreno. La vivienda se resuelve en tres niveles claramente diferenciados, generando una volumetría que potencia la relación visual con el paisaje circundante y el mar.
Desde un punto de vista arquitectónico, destaca una composición en planos horizontales claros y definidos, que contrastan con la inclinación natural del terreno. Estos planos generan terrazas amplias y abiertas que extienden la superficie habitable hacia el exterior, integrando una piscina que se fusiona visualmente con el horizonte.
La selección de materiales incluye hormigón visto, piedra natural local y acabados en tonos tierra que armonizan perfectamente con el entorno árido y costero. Los grandes cerramientos acristalados permiten que la luz natural inunde los interiores y potencian las vistas panorámicas al mar desde prácticamente cualquier punto de la vivienda.
La organización funcional responde claramente a la pendiente del terreno, distribuyendo el programa residencial en distintos niveles que definen diferentes grados de privacidad. Las áreas sociales se concentran estratégicamente en las plantas superiores, mientras que los espacios más privados quedan protegidos en los niveles inferiores, garantizando confort y una experiencia residencial exclusiva.










