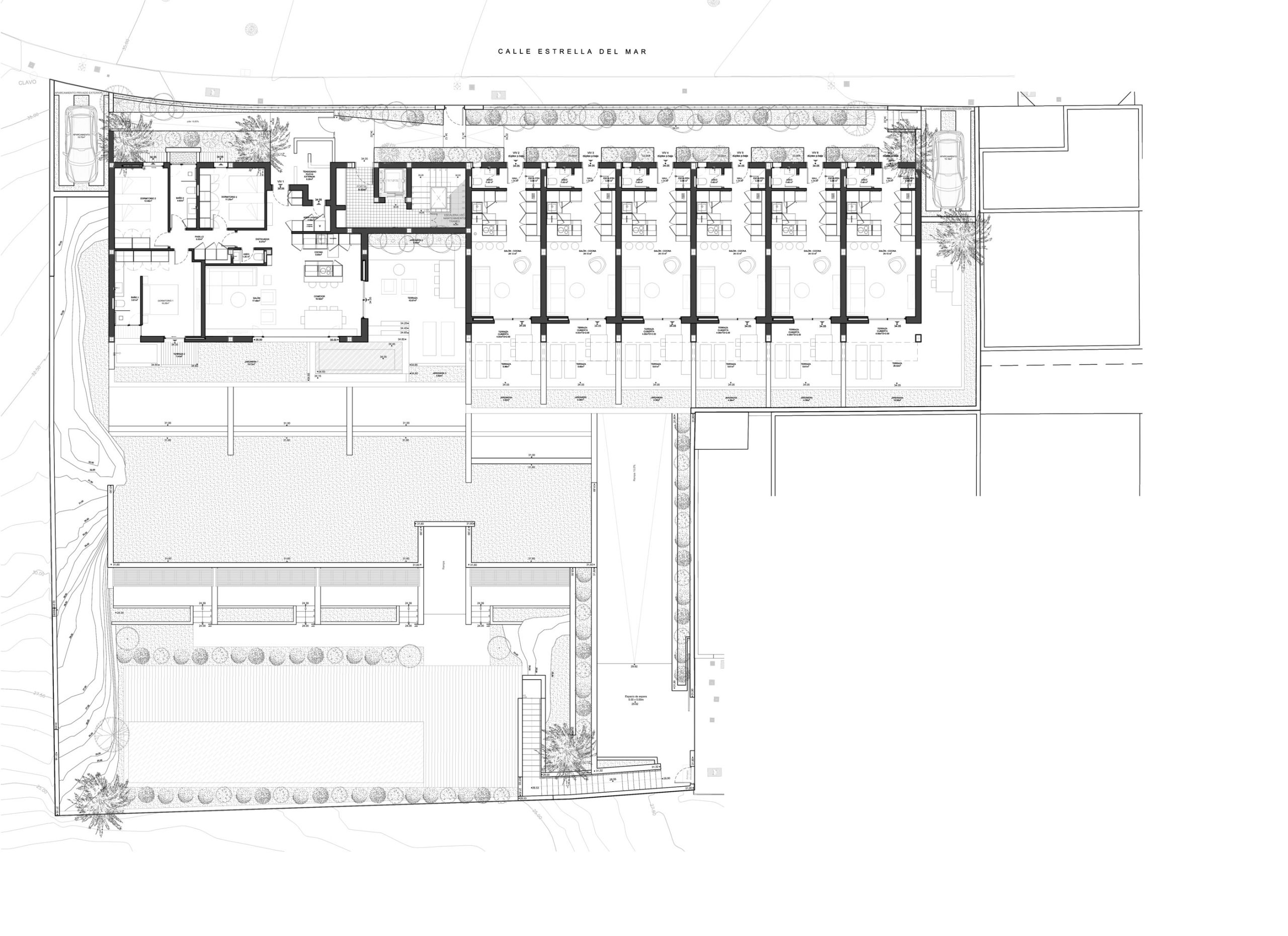
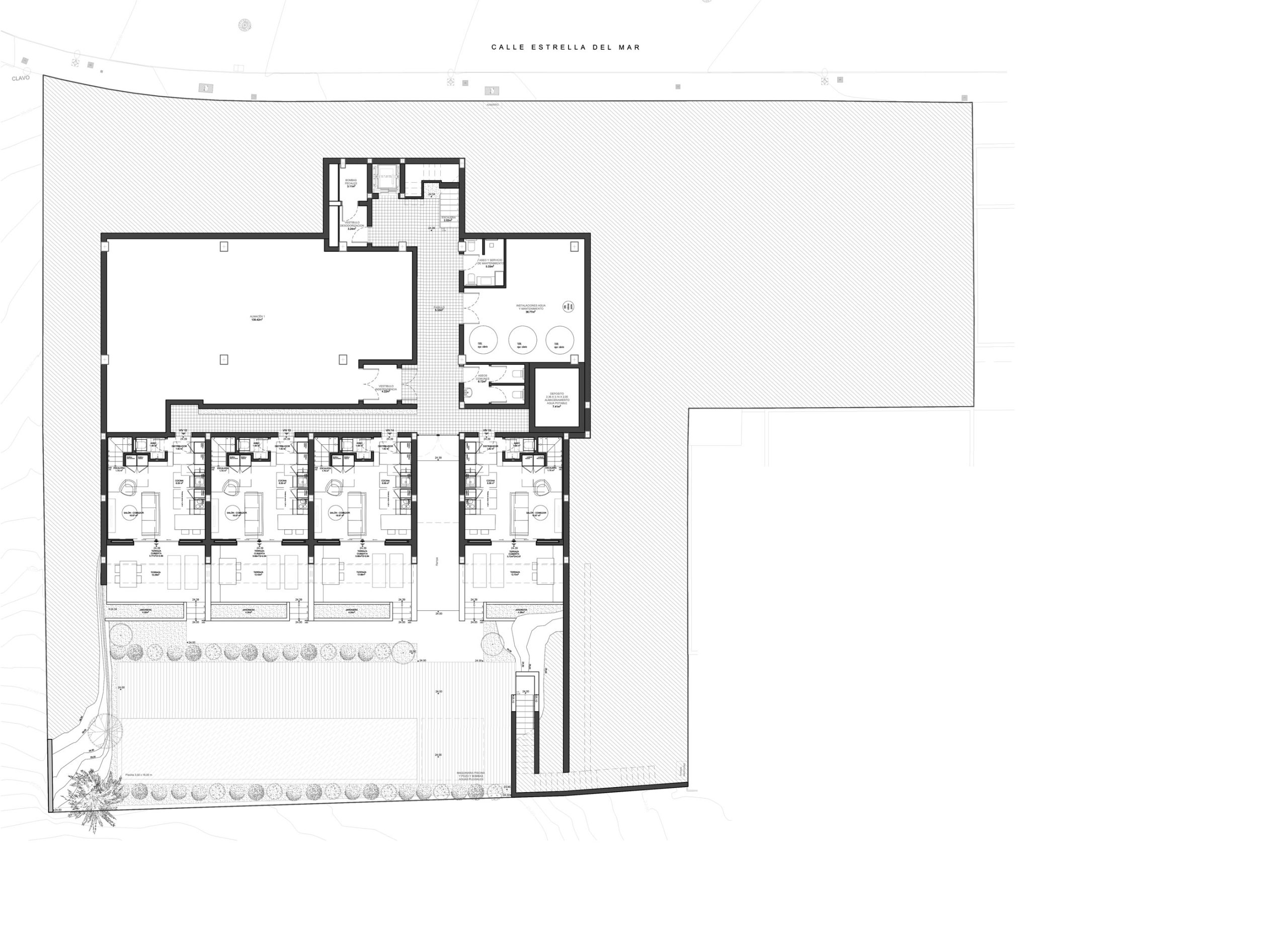
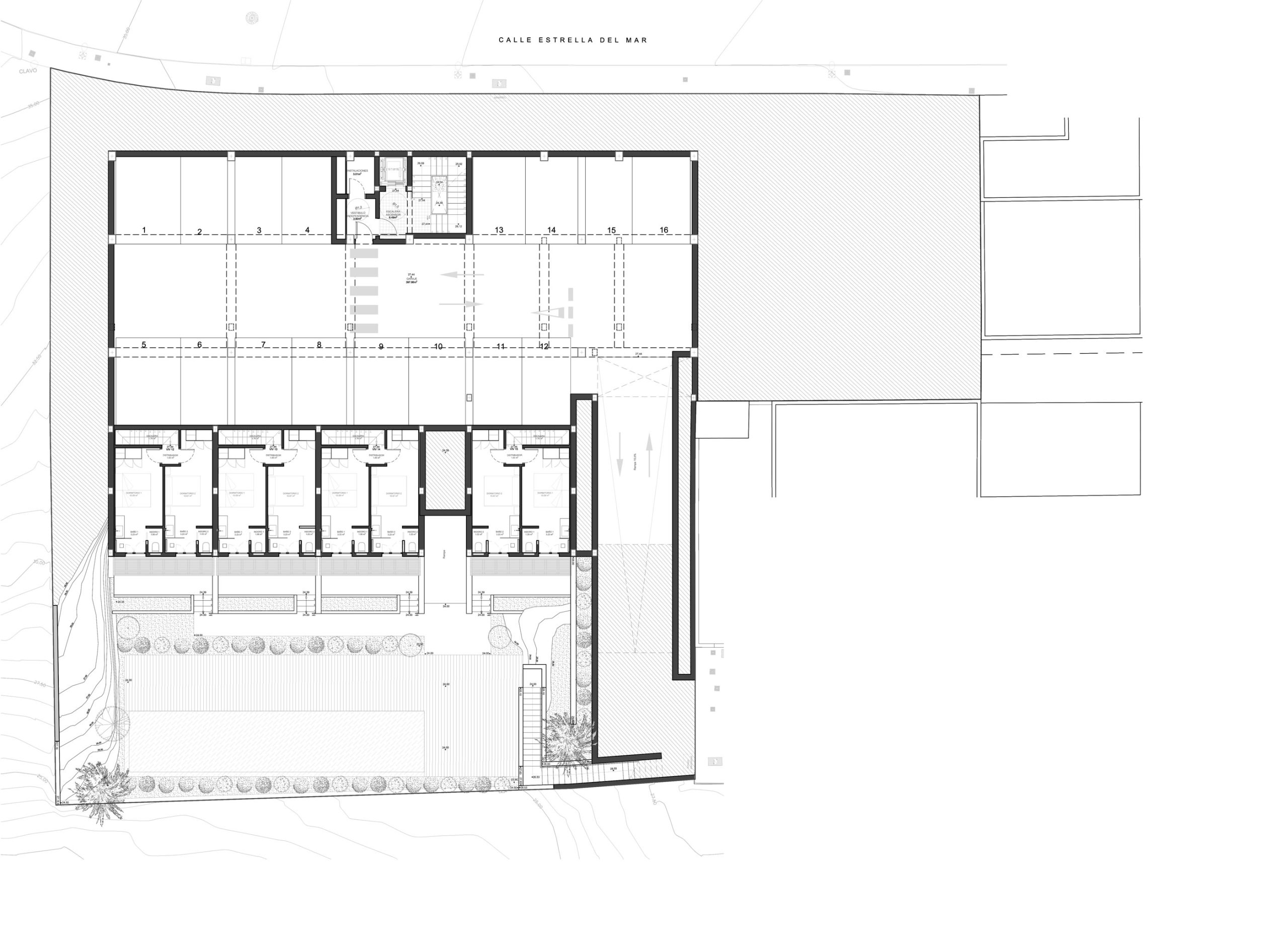
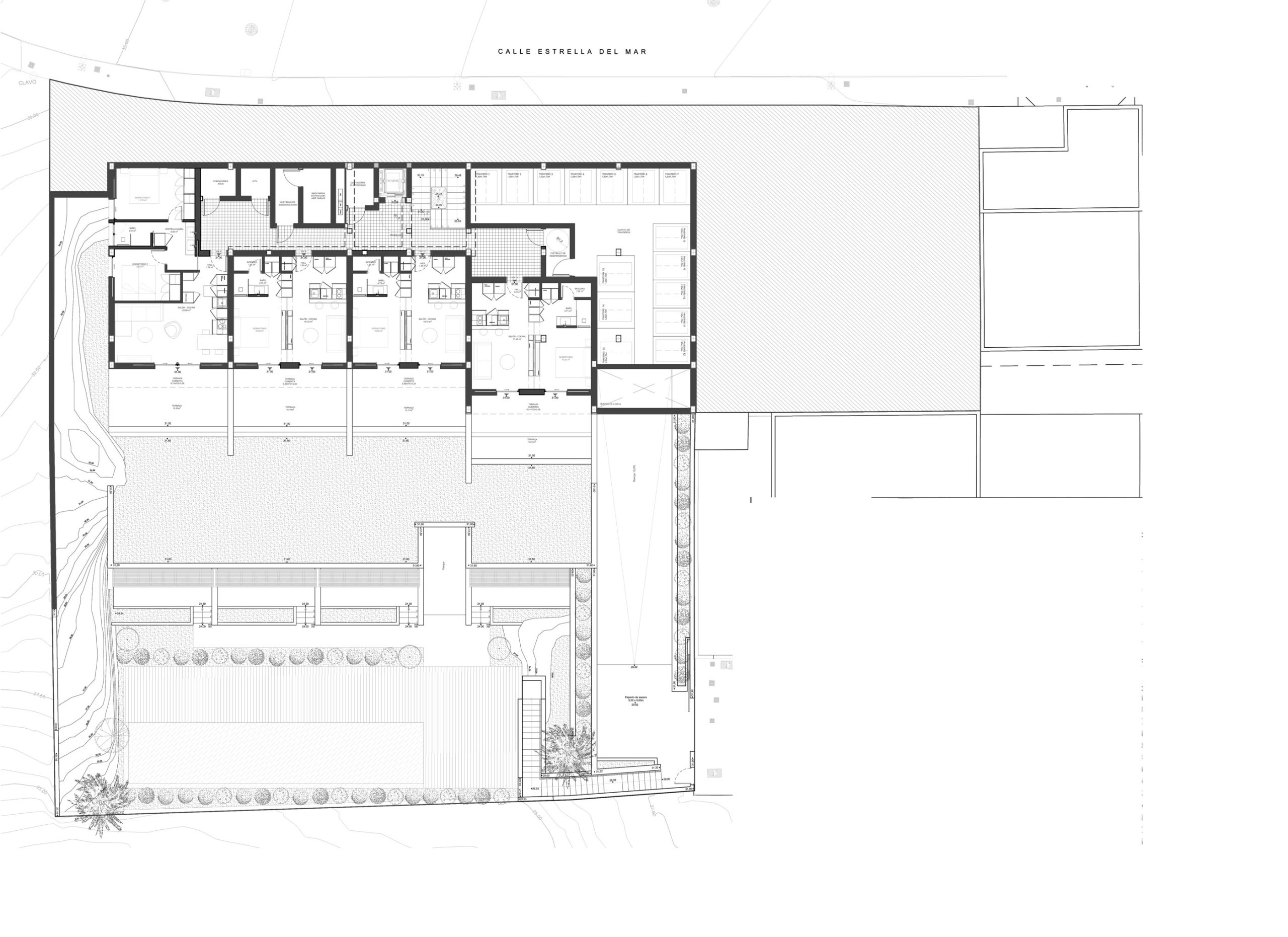
Residencial Solarico

Ubicado en segunda línea de mar en el sur de Tenerife, Residencial Solarico es un conjunto de viviendas turísticas diseñadas para integrarse con la topografía y el clima del entorno. La arquitectura se adapta al terreno mediante una configuración escalonada, permitiendo que cada unidad disfrute de terrazas privadas y vistas despejadas hacia el horizonte. La disposición volumétrica responde a una lectura fragmentada del conjunto, evitando un impacto visual monolítico y favoreciendo una integración más sutil en el paisaje.

El lenguaje arquitectónico se define por la combinación de volúmenes blancos, muros de piedra y elementos en madera, reinterpretando materiales tradicionales desde una perspectiva contemporánea. La fachada hacia la calle se resuelve con aperturas controladas y celosías que garantizan privacidad sin perder permeabilidad visual, mientras que en el interior, grandes ventanales conectan los espacios habitables con terrazas privadas y zonas ajardinadas.

La relación con el exterior es clave en el diseño, priorizando la ventilación cruzada y la entrada de luz natural en todas las unidades. La vegetación autóctona se incorpora en terrazas y espacios comunes, reforzando la conexión con el paisaje árido y minimizando el impacto de la intervención. Los espacios exteriores no son solo extensiones del interior, sino parte fundamental de la experiencia de habitar el complejo.

Residencial Solarico plantea una arquitectura funcional y sensible al entorno, donde cada vivienda ofrece privacidad sin perder la sensación de apertura. Un proyecto que entiende el turismo desde la calidad espacial y la relación directa con el paisaje, ofreciendo un refugio pensado para disfrutar tanto del interior como del exterior.

Somos Mava. Un estudio de Arquitectura, Interiorismo y Diseño, ubicado en Santa Cruz de Tenerife. Creamos espacios para vivirlos.

Visítanos

Calle Castillo, 23. 1ºA
Santa Cruz de Tenerife, 38002

Contacto
Connect

Privacy Settings
We use cookies to enhance your experience while using our website. If you are using our Services via a browser you can restrict, block or remove cookies through your web browser settings. We also use content and scripts from third parties that may use tracking technologies. You can selectively provide your consent below to allow such third party embeds. For complete information about the cookies we use, data we collect and how we process them, please check our Privacy Policy
Youtube
Consent to display content from - Youtube
Vimeo
Consent to display content from - Vimeo
Google Maps
Consent to display content from - Google